Property description
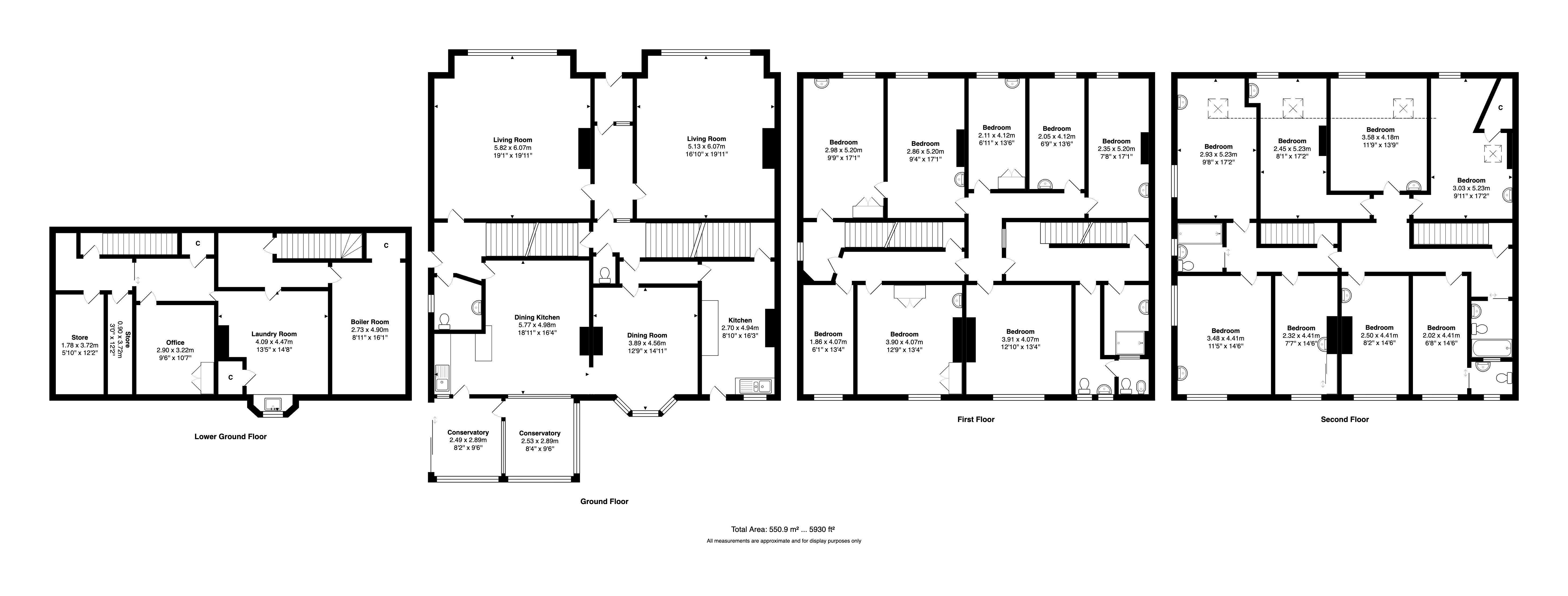
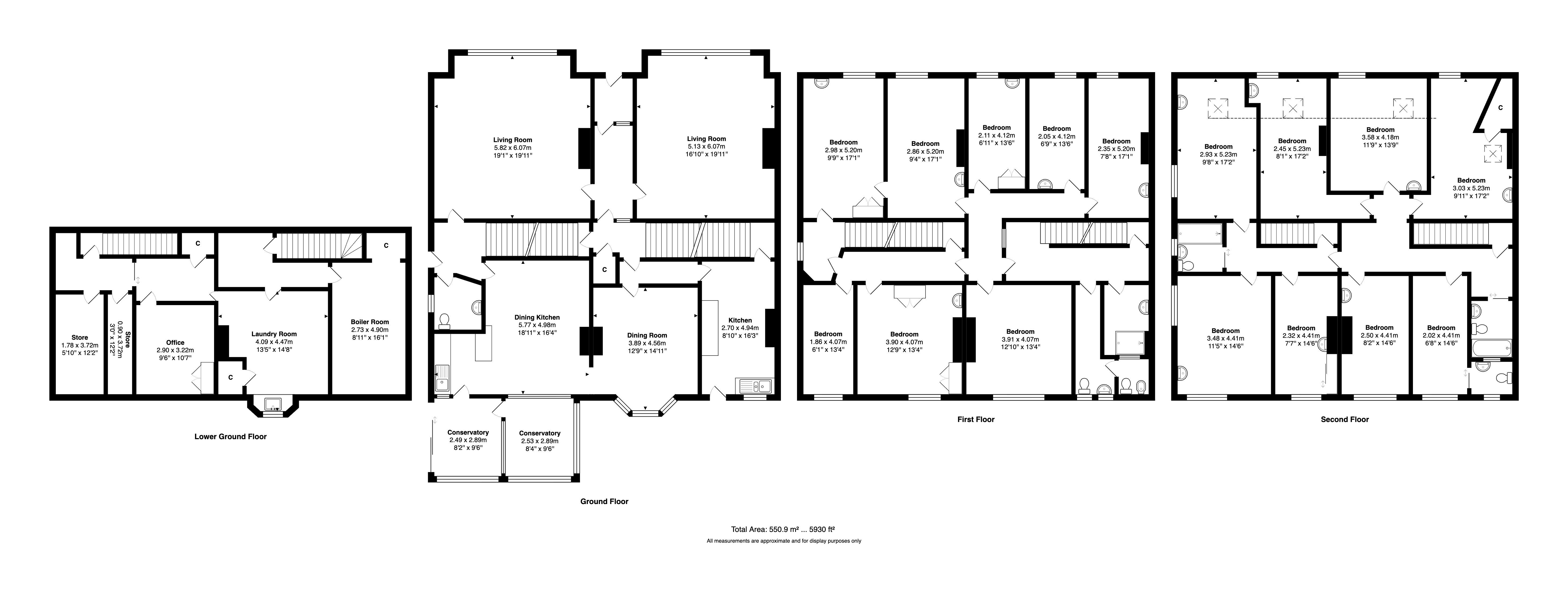
For sale by Modern Method of Auction Starting Bid Price £680,000 plus Reservation Fee. **Auction ends on 10th December at 11am*** A former 16 room care home with a commercial EPC rating of B... suitable for a variety of uses including HMO (subject to necessary permissions / licence) Rarely do mature buildings of this calibre and size (circa 5,600 sq. ft.) appear on the open market, especially in this part of BD2. Handy for multiple local amenities and offering access to both the City Centre and the ring road

Auction terms

This property is for sale by Modern Method of Auction allowing the buyer and seller to complete within a 56 Day Reservation Period. Interested parties’ personal data will be shared with the Auctioneer (iamsold Ltd). If considering a mortgage, inspect and consider the property carefully with your lender before bidding. A Buyer Information Pack is provided, which you must view before bidding. The buyer is responsible for the Pack fee. For the most recent information on the Buyer Information Pack fee, please contact the iamsold team. The buyer signs a Reservation Agreement and makes payment of a Non-Refundable Reservation Fee of 4.5% of the purchase price inc VAT, subject to a minimum of £6,600 inc. VAT. This Fee is paid to reserve the property to the buyer during the Reservation Period and is paid in addition to the purchase price. The Fee is considered within calculations for stamp duty. Services may be recommended by the Agent/Auctioneer in which they will receive payment from the service provider if the service is taken. Payment varies but will be no more than £960 inc. VAT. These services are optional.

Area and amenities

Key facts for consideration include: Around 3 miles (approx 10mins) to Apperley Bridge Train Station, around 5 miles (approx 20mins) to M606 (M62/J26/Chainbar) Motorway, multiple primary and secondary schools within a circa 2 mile radius, National Retailers within a circa 2 mile radius include: Aldi, Lidl, Home Bargains, Morrisons, Matalan, Sainsburys, Costa, Subway, KFC and McDonalds. Contact Robert Watts for further details and to arrange your viewing.

Read more

Interested in this property?

Book a viewing or request a callback from one of our expert team below.

Find out how much you can borrow

Stamp duty calculator

Stamp duty to pay is

£0

Mortgage calculator

yrs
%

Your approximate mortgage cost is

£0/month

Help to buy calculator

Help to buy loan

£0

Remaining mortgage

£0