Asking Price

£175,000

Carr Bottom Grove, Bankfoot, Bradford, BD5

  • 3 Bed
  •   |   1 Bathrooms

Share
Property description
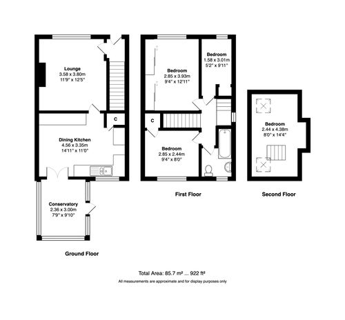
** OFFERED WITH NO CHAIN ** END TOWN HOUSE ** VAST AMOUNT OF POTENTIAL ** USEFUL LOFT ROOM ** Viewing is strongly advised for this popular style of property which offers family accommodation throughout. Briefly comprising: entrance hall, lounge, good size dining kitchen and CONSERVATORY. To the first floor and THREE BEDROOMS plus house bathroom with an overall ATTIC ROOM with Velux window and fixed stairs. Sat on an enviable plot gardens and driveway to front, which leads down the side of the property. Good size gardens to the rear which overall lends itself to extension opportunities (subject to permissions). Well placed for many amenities including schools.

Entrance Hall

Stairs leading to the 1st floor

Lounge

Dining Kitchen

Good size dining kitchen with a range of wall and base units, worktops with sink and drainer, plumbing for washer, cooker point and patio doors through to the conservatory.

Conservatory

A great addition overlooking the rear gardens

First Floor

Fixed stairs leading to attic

Bedroom One

Wall to wall sliding door wardrobes

Bedroom Two

Cupboard under stair

Bedroom Three

Bathroom

Three piece bathroom suite

Attic Room

Fully decorated with power and light. 2 Velux windows

Outside

Garden to the front with block paved drive. Patio area to the rear with lawn and store building.

Building Regs Disclaimer

N.B We advise all interested parties to clarify the position regarding building regulations and any relevant planning permissions with their legal representative prior to proceeding.

Brochure Disclaimer

Please note if you proceed with an offer on this property, we are obliged to undertake mandatory Anti Money Laundering checks on behalf of HMRC. All estate agents have to do this by law and we outsource this process to our compliance partners Credas who charge a fee for this service.

Read more

Interested in this property?

Book a viewing or request a callback from one of our expert team below.

Property Image 0

Find out how much you can borrow

Stamp duty calculator

Stamp duty to pay is

£0

Mortgage calculator

yrs
%

Your approximate mortgage cost is

£0/month

Help to buy calculator

Help to buy loan

£0

Remaining mortgage

£0

Similar properties