Asking Price

£235,000

Far Highfield Close, Idle, Bradford, BD10

  • 3 Bed
  •   |   2 Bathrooms

Property description
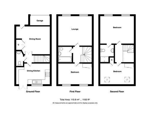
Sought after GREEN LANE area of IDLE! END TOWN HOUSE will appeal to a variety of buyers, including FAMILIES as there are MULTIPLE PRIMARY and SECONDARY schools within a circa 1 mile radius - Currently providing THREE DOUBLE BEDROOM (master en-suite) GENEROUSLY SIZED accommodation arranged over THREE FLOORS. Around 2 miles to APPERLEY BRIDGE TRAIN STATION and handy for many amenities in and around IDLE, THACKLEY and FIVE LANE ENDS. A detailed viewing is essential to appreciate , contact Robert Watts to arrange YOUR VIEWING today.

Council Tax

Band C

Tenure

Freehold

Porch

Hallway

Dining Hall

Ground Floor Cloaks/W.C

White suite

Ground Floor Dining Kitchen

Range of base and wall units, built under oven and hob, stainless steel splashback and hood, breakfast bar, downlights, plumbed for auto-washer. Pergo flooring. French doors to rear garden.

First Floor Lounge

Juliette balcony with French doors

First Floor Bedroom Three

Double wardrobe

First Floor Bathroom/W.C

Modern white suite with over bath

Second Floor Bedroom One

Double wardrobe

En-suite Shower Room

Second Floor Bedroom Two

Two velux windows, double wardrobe

Outside

Driveway parking. Small fore garden. Pleasant enclosed garden to rear with lawn, patio and decked area. Useful storage facility (front part of original garage)

AML

Please note if you proceed with an offer on this property we are obliged to undertake mandatory Anti Money Laundering checks on behalf of HMRC. All estate agents have to do this by law and we outsource this process to our compliance partners Credas who charge a fee for this service.

Read more

Interested in this property?

Book a viewing or request a callback from one of our expert team below.

Property Image 0

Find out how much you can borrow

Stamp duty calculator

Stamp duty to pay is

£0

Mortgage calculator

yrs
%

Your approximate mortgage cost is

£0/month

Help to buy calculator

Help to buy loan

£0

Remaining mortgage

£0

Similar properties