Asking Price

£449,995

Gladstone Court,, Westfield Green, Wyke/Scholes, Bradford, BD12

  • 4 Bed
  •   |   2 Bathrooms

Property description
** 13 NOW SOLD - ONE OF THE LAST ONE REMAINING HOUSES ** We are delighted to present this exceptional detached SHOW HOME for sale—boasting a superior specification and beautifully styled interiors—located within an exclusive and intimate development by Yorkshire Choice Homes. Ideally situated between the villages of Scholes and Wyke, with convenient access to nearby towns and the M62, this is one of the last remaining homes available on the site. The ‘Nostell’ house type offers a larger footprint, making it an ideal family home. Sold fully furnished and finished to an impeccable show home standard, it features stylish oversized tiled flooring and Quartz kitchen worktops. The accommodation comprises: entrance hall, lounge, an open plan fully fitted family kitchen, WC, and utility room. Upstairs are four bedrooms, including a master bedroom with en-suite, as well as a beautifully appointed family bathroom. Additional benefits include a double driveway, integral garage, gas central heating (GCH), black uPVC double glazing (DG), and an intruder alarm system. The property also includes a standard 10-year NHBC Warranty and Photovoltaic Panels (Solar) for energy efficiency. Do not miss this rare opportunity to own a fully finished and furnished show home in a sought-after location.

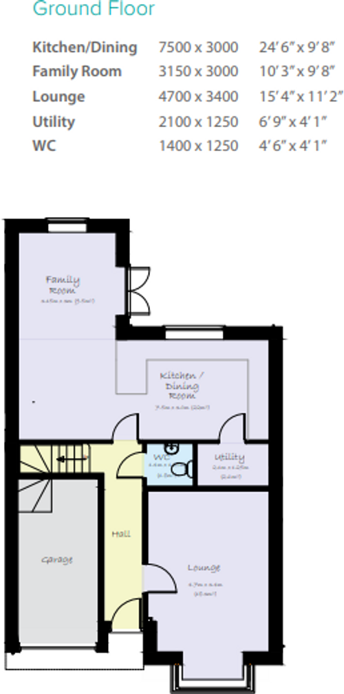
Hall

WC

WC and sink.

Lounge

Feature bay window making this a light and airy room.

Open Plan Dining Kitchen

The spacious kitchen/dining and family area is a perfect space for all the family to come together and relax or entertain. Range of wall and base units with worktops with breakfast bar, sink integral oven, gas hob and extract as standard, as well as integrated fridge/freezer and dishwasher. Open to Family Room which significantly boosts the floor space of this area.

Family Room

Patio doors leading to rear garden.

Bedroom One

Ensuite Bathroom

Three piece suite including glazed shower cubicle, vanity sink, wc with tiled walls and flooring,

Bedroom Two

Bedroom Three

Bedroom Four

Bathroom

Three piece suite with bath, vanity sink and WC with tiled walls and flooring.

Exterior

Occupying an ample sized plot with double driveway parking and single integral garage with electric door measuring 15' x 7'10 (4.6m x 2.4m) with EV charging point. Lovely landscaped lawned gardens to the rear with paved patio area and outside lighting.

Please Note

Please note buyers have the opportunity to choose their own kitchen units and bathroom tiles from a variety of styles and further details are available on request. Please note all images are for illustration only and can verify and maybe not reflect the property itself. There maybe upgrades at an additional cost subject to build stage. Please call us for more information. Council Tax Band and EPC not yet assessed

Read more

Interested in this property?

Book a viewing or request a callback from one of our expert team below.

Find out how much you can borrow

Stamp duty calculator

Stamp duty to pay is

£0

Mortgage calculator

yrs
%

Your approximate mortgage cost is

£0/month

Help to buy calculator

Help to buy loan

£0

Remaining mortgage

£0

Similar properties