Asking Price

£490,000

Hartley Court, Liversedge, WF15

  • 4 Bed
  •   |   2 Bathrooms

Property description
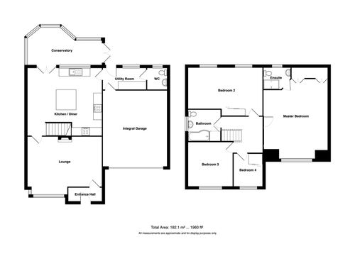
Located on this ever popular, executive cul-de-sac, this delightful four/five bedroom detached home has a STYLISH CONTEMPORARY FINISH and makes a SUPER FAMILY HOME. Offering easy access to the local schools and within the catchment of the well regarded 'Heckmondwike Grammar School', it is also close to the amenities of both Cleckheaton & Heckmondwike and the M62 Motorway. Warranting an internal inspection to appreciate the size and specification on offer, this former five bedroom house offers great space for those working from home and occupies a good sized corner plot. Comprises lounge, open plan recently fitted dining kitchen, sun room with solid roof, utility & WC on the ground floor, master ensuite bedroom, three further bedrooms and family bathroom. Ample sized driveway parking and double garage with landscaped South facing rear lawned garden and patio area. Benefits from GCH with modern boiler & uPVC DG.

Entrance Hall

Lounge

Spacious living room with gas point for installation of gas fire if required.

Dining Kitchen

Open plan Dining Kitchen which is ideal for entertaining and features a recently fitted range of quality wall and base units incorporating contrasting granite work tops, island unit and breakfast bar plus inset sink and mixer tap. Integral microwave, electric oven and induction hob plus extractor. Integral fridge/freezer and dishwasher, feature under unit lighting and double doors leading to conservatory.

Sun Room

Former conservatory now with solid roof making it more usable all year around. Doors leading out to the garden. Under floor heating.

Utility

Plumbing for auto washer. Access to garage, rear garden & WC.

Guest Cloakroom

Recently fitted WC and vanity sink.

Master Bedroom

Double fitted wardrobes. Wall mounted TV point.

En Suite

Three piece modern suite comprising glazed shower cubicle, vanity sink unit and wc. Tiled walls and floor and chrome wall mounted heated towel rail.

Bedroom Two

Fitted wardrobes. This room was originally two bedrooms and the partition wall could easily be rebuilt to create a five bedroom home.

Bedroom Three

Fitted double wardrobes.

Bedroom Four

Fitted wardrobes.

Bathroom

Three piece modern suite comprising P-shaped bath with integral shower having 'Rain Forest' head and glazed shower screen. Vanity sink and wc. Tiled walls and floor and useful storage cupboard.

Exterior

Occupying a good sized plot at the head of the cul-de-sac measuring c. 0.1 acres with block paved driveway with parking for upto four cars leading to a double integral garage with electric door measuring 18'8 x 15'5 (5.7m x 4.7m). Pleasant South facing lawned garden to the rear with raised paved patio, hot tub, outside hot and cold water tap and mature trees and shrubs. Please note some of the mature trees are subject to Tree Preservation Orders which will require permission to trim or remove.

Additional Info

Freehold Council Tax Band F EPC rating - C

Read more

Interested in this property?

Book a viewing or request a callback from one of our expert team below.

Property Image 0

Find out how much you can borrow

Stamp duty calculator

Stamp duty to pay is

£0

Mortgage calculator

yrs
%

Your approximate mortgage cost is

£0/month

Help to buy calculator

Help to buy loan

£0

Remaining mortgage

£0