Asking Price

£150,000

New Cross Street, West Bowling, Bradford, BD5

  • 4 Bed
  •   |   1 Bathrooms

Property description
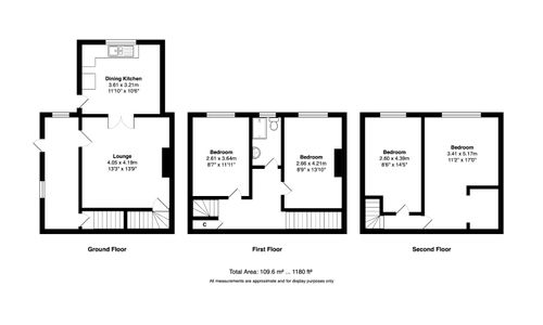
** EXTENDED REAR BACK TO BACK ** FOUR DOUBLE BEDROOMS ** POPULAR RESIDENTIAL LOCATION ** Viewing is strongly advised for this great size family home which briefly comprises: Entrance hallway, lounge leading through to well equipped dining kitchen extension. Two first floor bedrooms and wetroom with a further TWO DORMER bedrooms to the 2nd floor. Externally the yard area to rear has two permanent outbuildings with power and light. Well placed for many amenities within the West Bowling area including schools and walks through Bowling park PLUS great commuter links to the city centre. VIEWING IS STRICTLY BY APPOINTMENT ONLY

Entrance

Side entrance into hall. Additional entrance to the kitchen

Hallway

Access through to lounge and useful store cellar

Lounge

Good size reception with double doors. Access to kitchen extension

Kitchen Extension

Modern, two tone fitted kitchen with a selection of wall and base units. Worktops, sink and drainer. Freestanding cooker with extractor and splash back tiled walls. Plumbing for washer and space for dryer

First Floor

Landing area with stairs to the second floor and useful store cupboard

Bedroom One

Bedroom Two

Over stair store cupboard

Wet Room

Adapted for disabled use with sink, W.C and shower area

Second Floor

Bedroom Three

Bedroom Four

Large walk in dressing room

Outside

Good size yard area to the rear with permanent built stores with power and light

Buyer Disclaimer

Please note if you proceed with an offer on this property, we are obliged to undertake mandatory Anti Money Laundering checks on behalf of HMRC. All estate agents have to do this by law and we outsource this process to our compliance partners Credas who charge a fee for this service.

Read more

Interested in this property?

Book a viewing or request a callback from one of our expert team below.

Property Image 0

Find out how much you can borrow

Stamp duty calculator

Stamp duty to pay is

£0

Mortgage calculator

yrs
%

Your approximate mortgage cost is

£0/month

Help to buy calculator

Help to buy loan

£0

Remaining mortgage

£0

Similar properties