Guide Price

£363,000

Buttershaw Lane, Wibsey, Bradford, BD6

  • 5 Bed
  •   |   2 Bathrooms

Property description
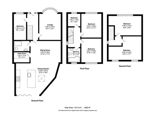
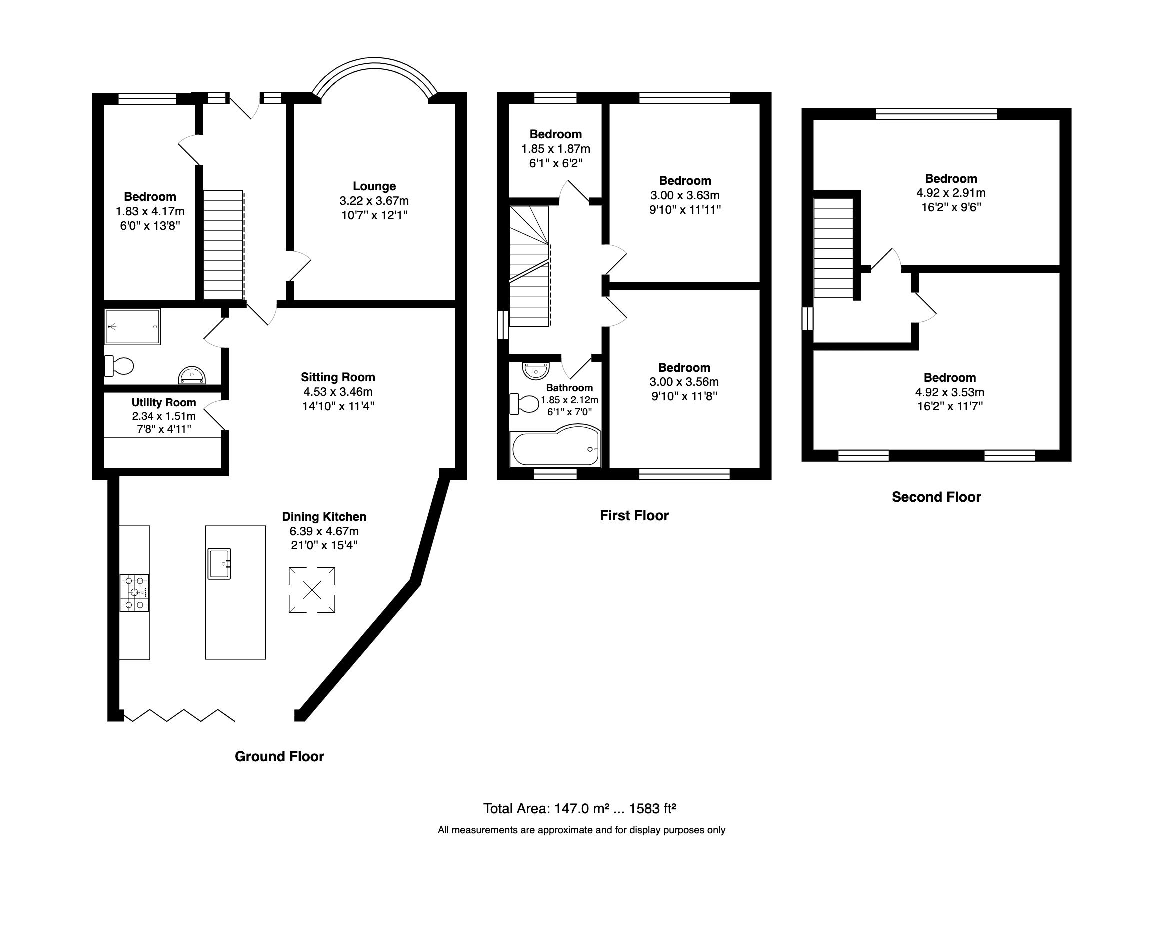
** SUPERB SEMI DETACHED ** FIVE/SIX BEDROOMS ** EXCELLENT RECENTLY COMPLETED SIDE AND REAR EXTENSION ** STUNNING THROUGHOUT ** NO EXPENSE HAS BEEN SPARED ** . Viewing is strongly advised for this SEMI DETACHED property which has undergone a refurbishment and now briefly comprises: entrance hallway with open stairs to the first floor, lounge PLUS an excellent addition of a side and rear extension creating an amazing sitting room, formal dining area with open kitchen, UTILITY ROOM & SHOWER ROOM, GROUND FLOOR BEDROOM/OFFICE SPACE. TWO double bedrooms, single room and family bathroom to the first floor. TWO double dormer bedrooms to the second floor. Externally, there are large gardens to the front and rear with driveway. GCH & DG throughout. Situated just off Halifax Road, ideal for many amenities, schools, doctors and commute to Bradford/Halifax plus further afield via the Motorway network. A lovely family home.

Entance Hallway

Spotlights, laminate flooring and open stairs to first floor

Formal Reception Room

Bay window, with modern electric fire and fire surround

Family Room

Formally the dining kitchen this area has now been utilised as an open sitting room for the family to enjoy

Breakfast Dining Area

This open living area will not fail to impress with Velux windows and bi-folding doors allowing plenty of natural light! Quality fitted kitchen with a range of wall and base units, central island, integrated appliances to include double oven, microwave, 5 ring gas hob and extractor

Shower Room

Larger than average for a cloakroom with walkin shower, vanity sink and W.C

Utility Room

Matching wall and base units leading from the kitchen, worktops, plumbing for washer and space for dryer

Bedroom/Office

Ideal for guests or elderly relatives as wash facilities are available on the ground floor. Great office space

First floor

Stairs leading to second floor

Bedroom One

Bedroom Two

Bedroom Three

Family Bathroom

Contemporary white suite with double shower head over panelled bath and screen. Sink and W.C. Fully tiled

Domer bedroom Five

Dormer Bedroom Four

Outside

Driveway allowing parking for several cars. Large lawned gardens to the front and rear. Planning permission for a single storey wrap around extension

Buyer Disclaimer

Please note if you proceed with an offer on this property, we are obliged to undertake mandatory Anti Money Laundering checks on behalf of HMRC. All estate agents have to do this by law and we outsource this process to our compliance partners Credas who charge a fee for this service

Read more

Interested in this property?

Book a viewing or request a callback from one of our expert team below.

Property Image 0

Find out how much you can borrow

Stamp duty calculator

Stamp duty to pay is

£0

Mortgage calculator

yrs
%

Your approximate mortgage cost is

£0/month

Help to buy calculator

Help to buy loan

£0

Remaining mortgage

£0

Similar properties